İLETİŞİM HATTI +90 (252) 635 85 75

Çift Katlı Çelik Evler / Çift Katlı 250 m² Çelik Ev

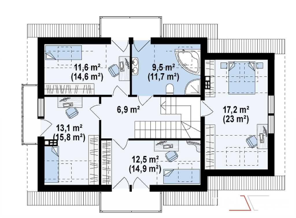
Çift Katlı 250 m² Çelik Ev

Çift Katlı 250 m² Çelik Ev
Çift Katlı 250 m² Çelik Ev
Çift Katlı 250 m² Çelik Ev
Çift Katlı 250 m² Çelik Ev
Çift Katlı 250 m² Çelik Ev
Çift Katlı 250 m² Çelik Ev
Çift Katlı 250 m² Çelik Ev
Çift Katlı 250 m² Çelik Ev
Çift Katlı 250 m² Çelik Ev
Çift Katlı 250 m² Çelik Ev

Ürün Bilgisi


Dış Duvar : 19.5 cm / 14.5 cm,

İç Duvar : 14.5 cm,

Islak Hacimlerde Yeşil Alçıpan Kaplaması,

Çatı Kaplaması : Galveniz Sac, Metal Kiremit(Opsiyonel), Shingle (Opsiyonel )

Dış Kapı : Çelik Kapı,

Pencereler : Kurşunsuz PVC,

Elektrik Tesisatı : Sıva Altı,

Sıhhi Tesisat : Sıva Altı,

Tüm Köşeler İçin Estetik Betopan Köşe Kaplamaları

Tüm ürünlerimiz 2 yıl boyunca firmamızın ücretsiz garantisi kapsamındadır. Ürünlerimiz hakkında daha fazla bilgi almak için lütfen bizimle iletim kurun.


Çift Katlı Çelik Evler

Daha fazla ürün çeşidi görüntülemek ve detaylı bilgi almak için lütfen Çift Katlı Çelik Evler sayfamızı ziyaret ediniz.

Scroll to Top